Undergraduate Dormitory for Pratt Institute

Undergraduate Dormitory for Pratt Institute
with Alejandra Chinea
Brooklyn, NY
2015
Prof. Lawrence Blough
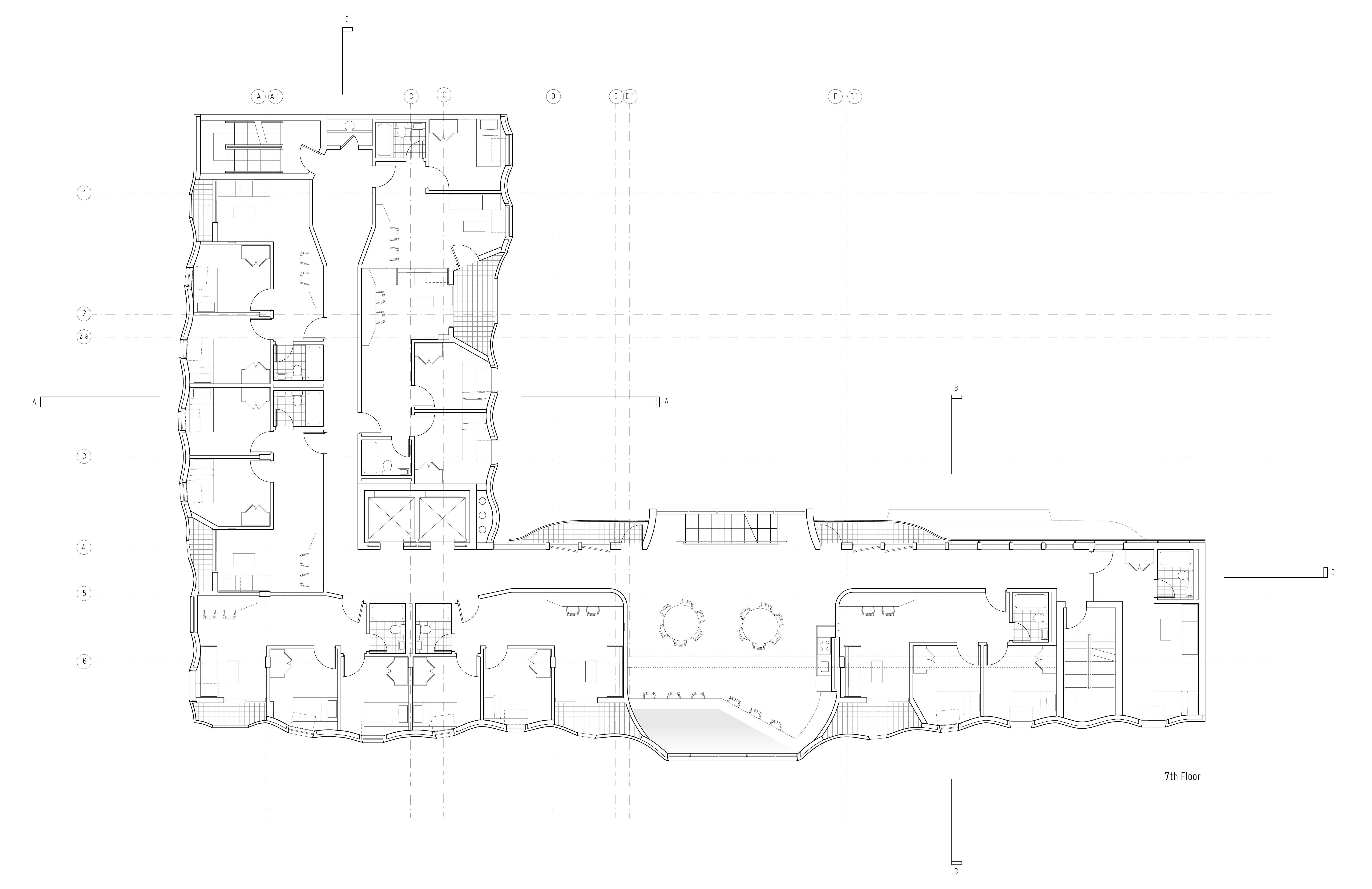
Interior spatial deformation is created through the thick facade. The user, the room, and the urban social contexts control the aperatures. Fluctuations in plan allow for large social spaces for group eating, communal living, and circulation.










